Dacor OGC36 Drawer Divider
Dacor OGC36 Outdoor Grill Drawer Divider Parts Lookup
OGC36 Bottom Panel OGC36 Drawer Divider OGC36 Electrical Box OGC36 Left Panel OGC36 Right Panel
OGC36 Tank Drawer OGC36 Top Drawer

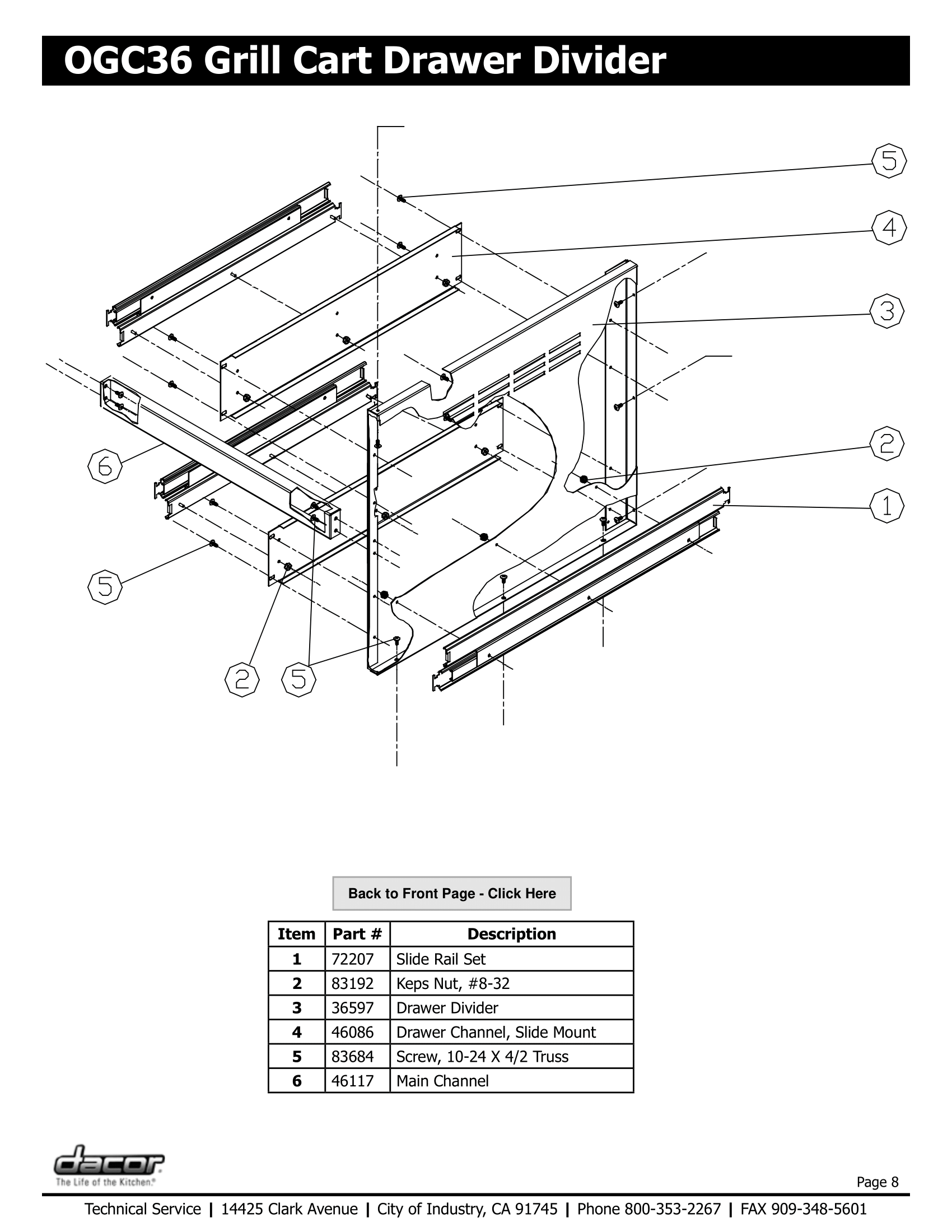
Below are all of the parts that are from the drawer divider area of your Dacor OGC36 Grill. Below the image are the parts that are included. If you're still having trouble finding the part you need for your OGC36 grill, please give us a call at (844)703-9250 or Contact Us. If you have a different model number on your Dacor Grill, select it from the list on the right.
OGC36 Bottom Panel OGC36 Drawer Divider OGC36 Electrical Box OGC36 Left Panel OGC36 Right Panel